Om prosjektet
Boligvelger
Boligene
Området
Næringslokaler
Dokumenter
Galleri
Nyheter
Kontakt
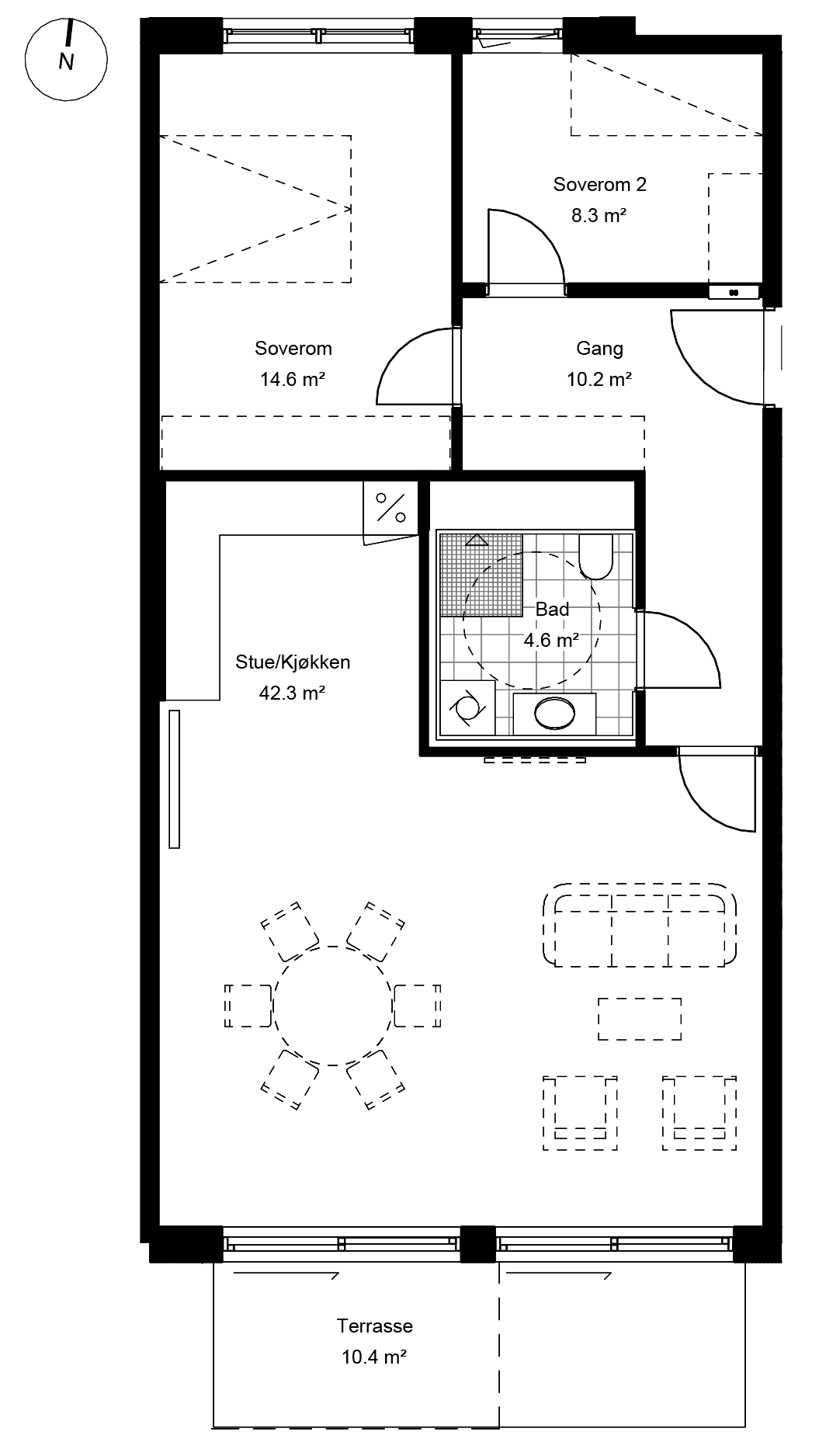
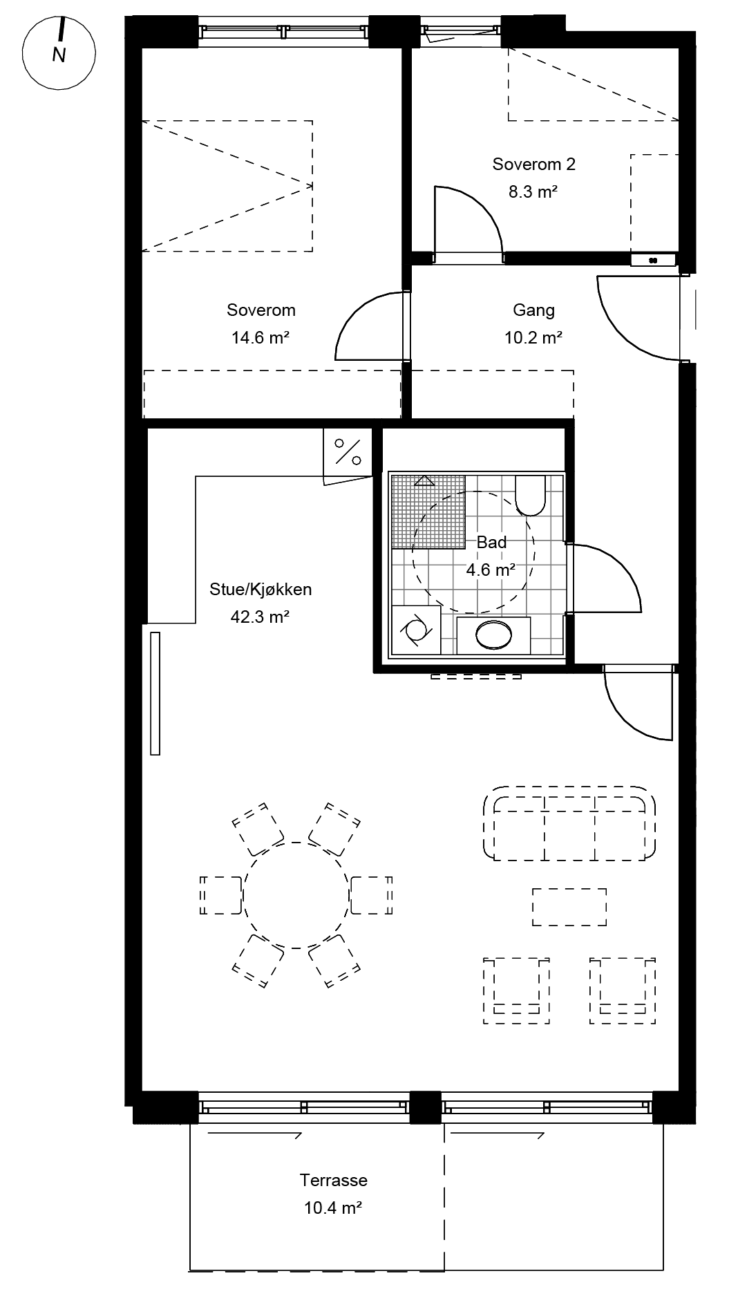
CBU03
Meld interesse
Gi bud
Last ned plantegning
Pris
7 590 000
BRA kvm.
89.5
BRA-i
84.5
Etasje
0.
Rom
3
Soverom
2
Uteplass m²
10.4
Bod
Ja
Garasjeplass
500 000,-
Omkostninger
39 960
Felleskostnader
3018
Salgsplan leilighet CBU03
Meld interesse for enheten
Fyll inn navn
Fyll inn telefonnummer
Fyll inn e-post
Jeg ønsker å bli kontaktet i samtykke med denne
personvernerklæringen
Send
Powered by Plyo
Tilbake til Hus C