Om prosjektet
Boligvelger
Boligene
Området
Dokumenter
Galleri
Nyheter
Kontakt
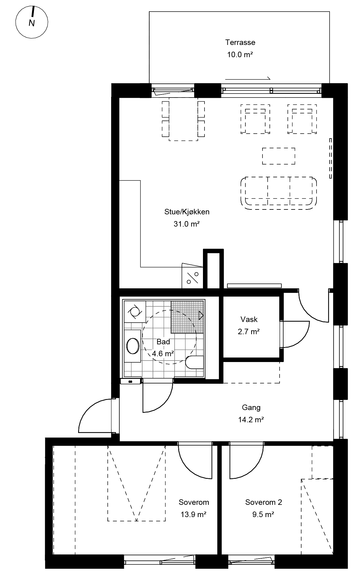
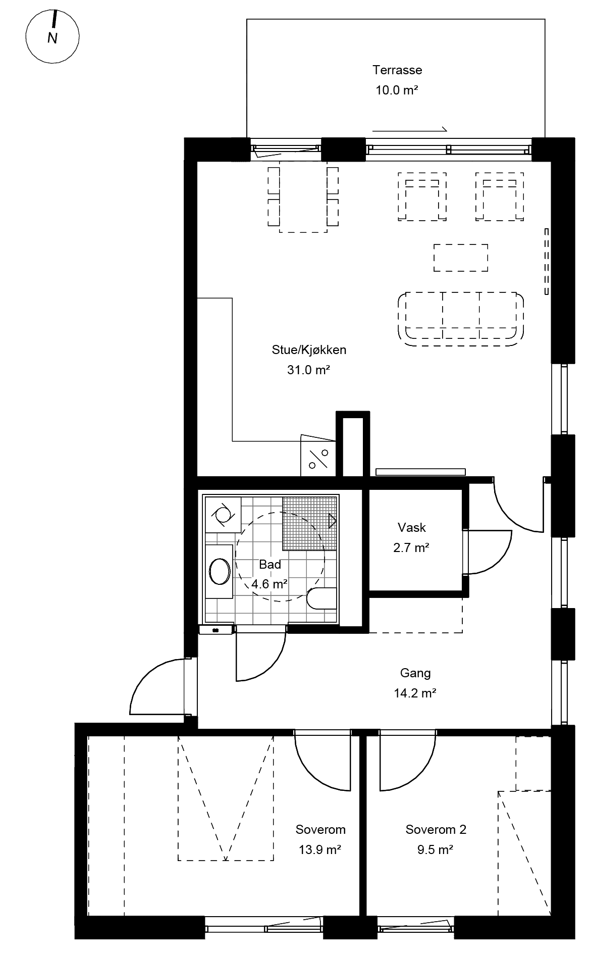
CBU01
Meld interesse
Gi bud
Last ned plantegning
Pris
6 990 000
BRA kvm.
86.1
P-rom
81.1
Etasje
.
Rom
3-roms
Soverom
2
Uteplass m²
10
Bod
Ja
Garasjeplass
500 000,-
Omkostninger
38 680
Felleskostnader
2915
Salgsplan leilighet CBU01
Meld interesse for enheten
Fyll inn navn
Fyll inn telefonnummer
Fyll inn e-post
Jeg ønsker å bli kontaktet i samtykke med denne
personvernerklæringen
Send
Powered by Plyo
Tilbake til Hus C