Om prosjektet
Boligvelger
Boligene
Området
Dokumenter
Galleri
Nyheter
Kontakt
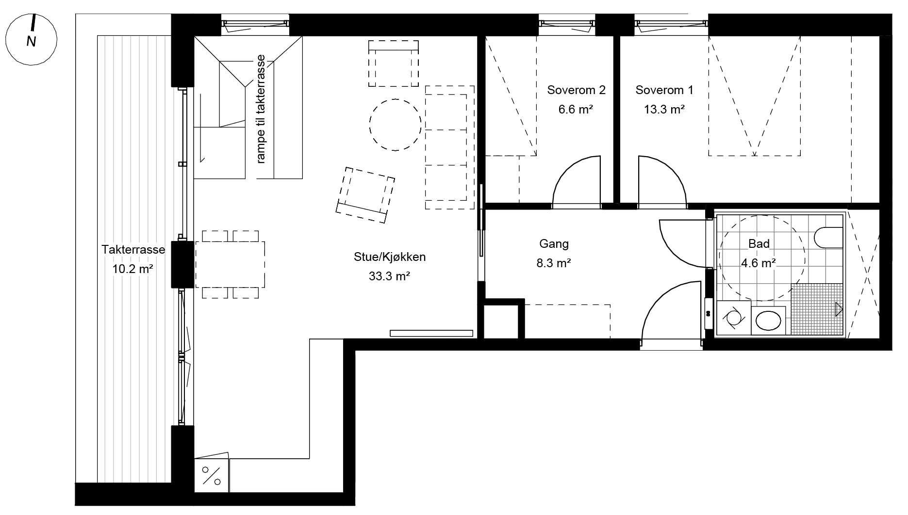
CB502
Rampe i stue kan fjernes
Meld interesse
Gi bud
Last ned plantegning
Pris
7 650 000
BRA kvm.
75.5
P-rom
70.5
Etasje
5.
Rom
3-roms
Soverom
2
Uteplass m²
10,2
Bod
Ja
Garasjeplass
500 000,-
Omkostninger
34 767
Felleskostnader
2 595
Salgsplan leilighet CB502
Meld interesse for enheten
Fyll inn navn
Fyll inn telefonnummer
Fyll inn e-post
Jeg ønsker å bli kontaktet i samtykke med denne
personvernerklæringen
Send
Powered by Plyo
Tilbake til Hus C