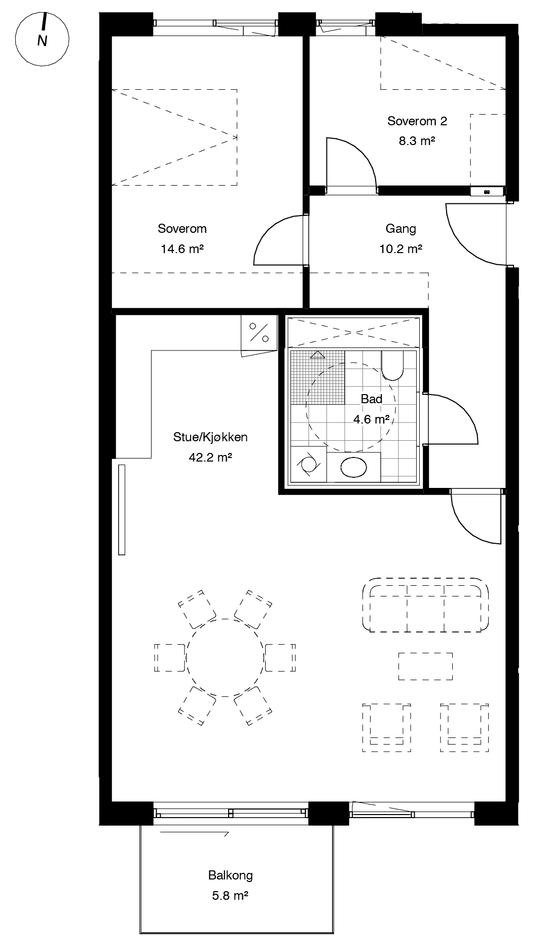
CB402
Leilighet CB402 er en gjennomgående leilighet som vender ut mot det bilfrie gatetunet på ene siden og inn mot bakhagen på den andre. Leiligheten har to soverom, bad, åpen stue/ kjøkkenløsning og solrik balkong. Gode oppbevaringsmuligheter.
Pris
7 990 000
BRA kvm.
89,5
BRA-i
84,5
Etasje
4
Rom
3
Soverom
2
Uteplass m²
5,8
Bod
Ja
Garasjeplass
500 000
Omkostninger
39 617
Felleskostnader
5 925
