Om prosjektet
Boligvelger
Boligene
Området
Næringslokaler
Dokumenter
Galleri
Nyheter
Kontakt
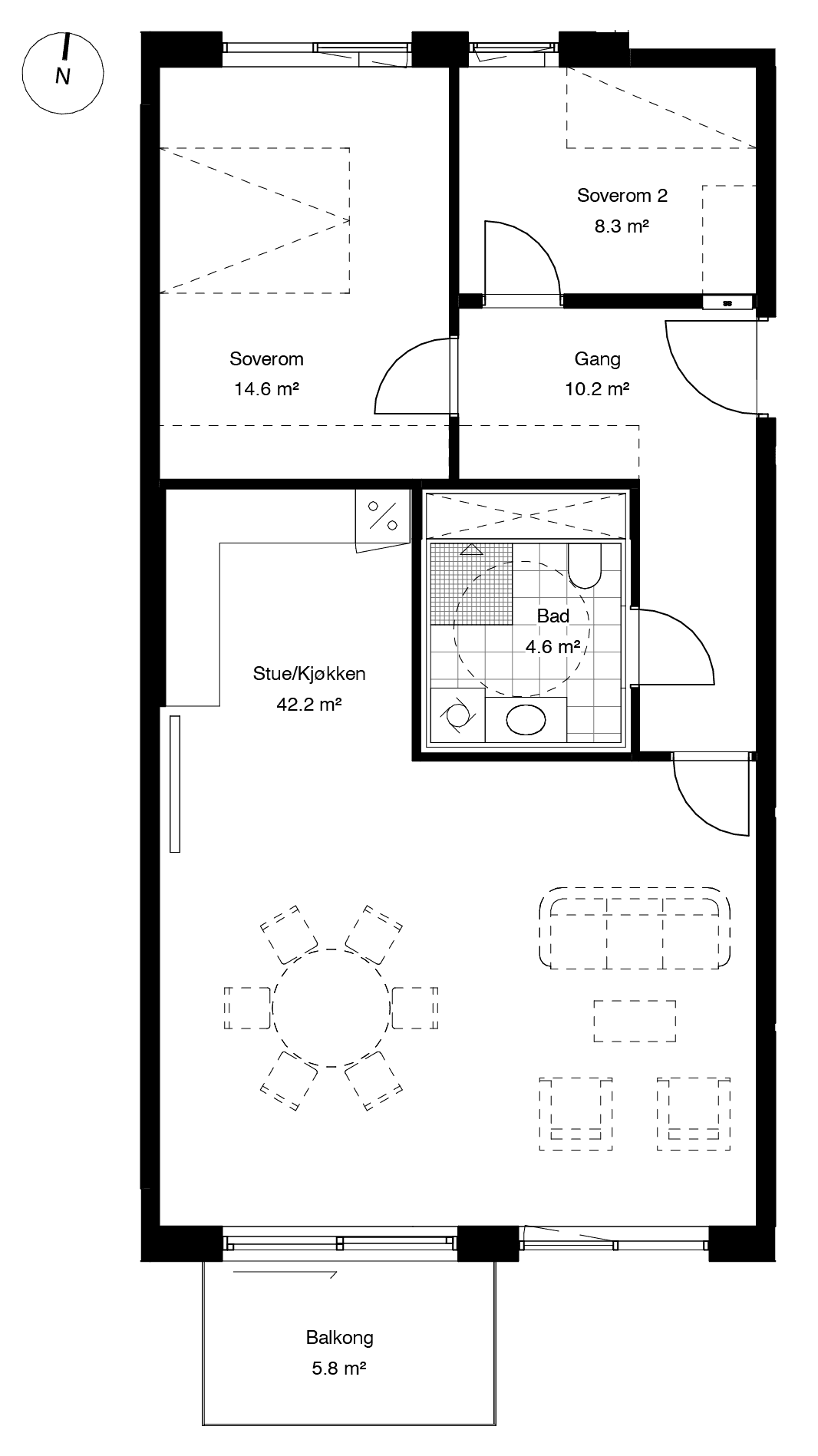
CB302
TILBUD NÅ
P-plass inkludert, verdi 500 000,-
Meld interesse
Gi bud
Pris
7 890 000
BRA kvm.
89,5
BRA-i
84,5
Etasje
3
Rom
3
Soverom
2
Uteplass m²
5,8
Bod
Ja
Garasjeplass
0
Omkostninger
39 617
Felleskostnader
5 925
Salgsplan leilighet CB302
Meld interesse for enheten
Fyll inn navn
Fyll inn telefonnummer
Fyll inn e-post
Jeg ønsker å bli kontaktet i samtykke med denne
personvernerklæringen
Send
Powered by Plyo
Tilbake til Hus C