Om prosjektet
Boligvelger
Boligene
Området
Dokumenter
Galleri
Nyheter
Kontakt
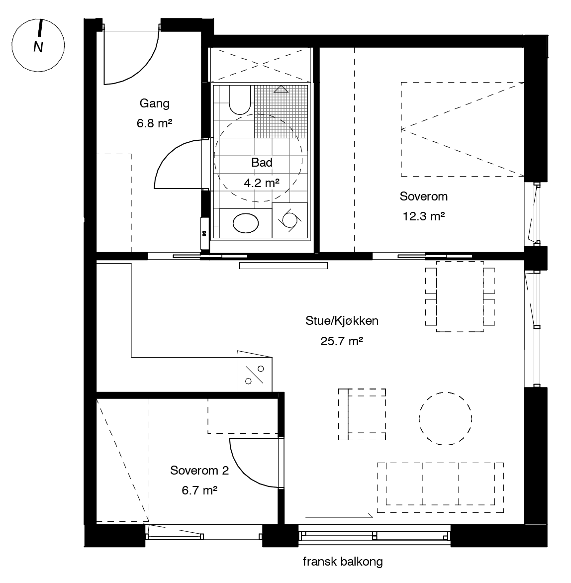
CB301
Meld interesse
Gi bud
Last ned plantegning
Pris
5 690 000
BRA kvm.
64.8
P-rom
59.8
Etasje
3.
Rom
3-roms
Soverom
2
Uteplass m²
Fransk balkong
Bod
Ja
Garasjeplass
500 000,-
Omkostninger
30 367
Felleskostnader
2 243
Salgsplan leilighet CB301
Meld interesse for enheten
Fyll inn navn
Fyll inn telefonnummer
Fyll inn e-post
Jeg ønsker å bli kontaktet i samtykke med denne
personvernerklæringen
Send
Powered by Plyo
Tilbake til Hus C