Om prosjektet
Boligvelger
Boligene
Området
Næringslokaler
Dokumenter
Galleri
Nyheter
Kontakt
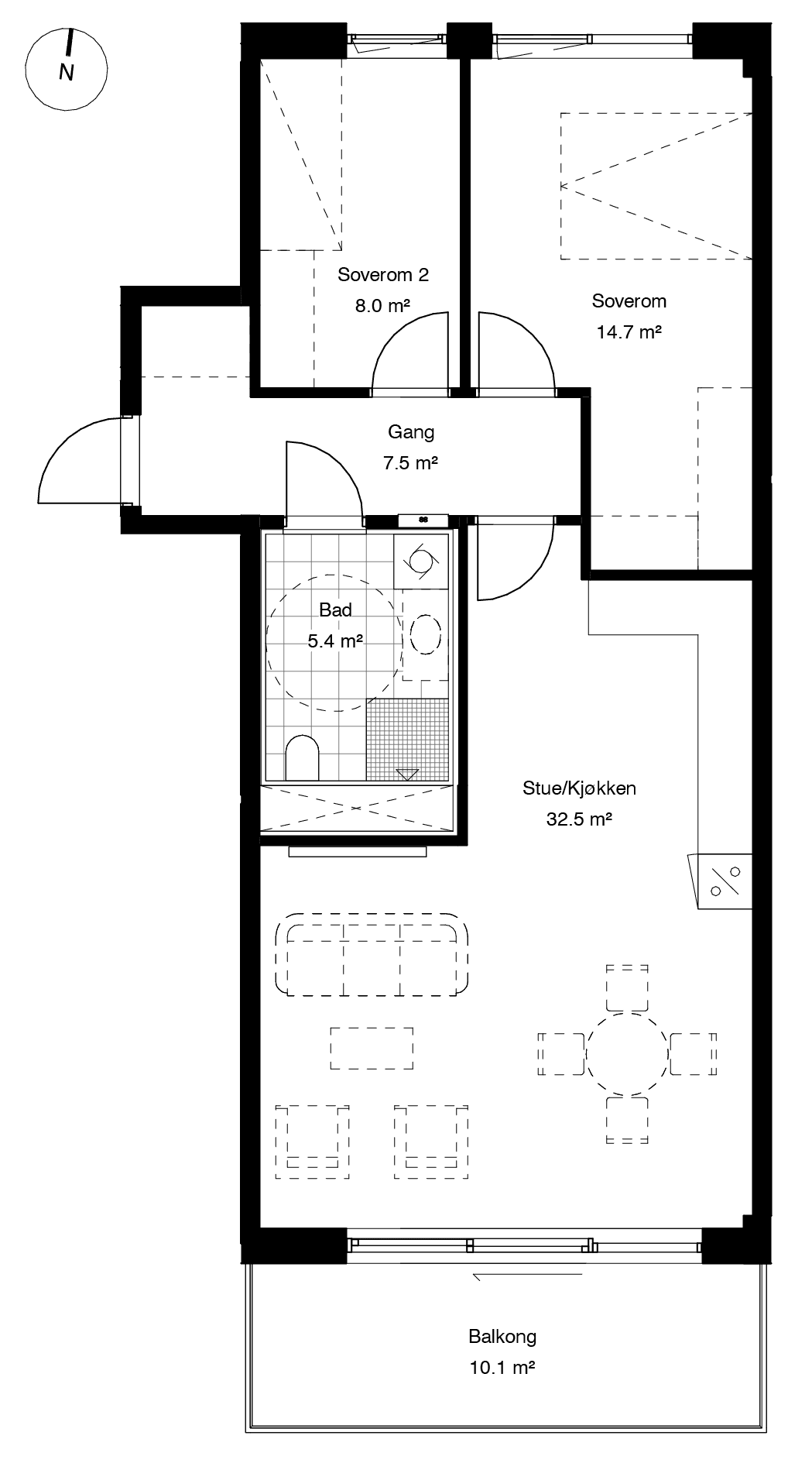
CA301
Ekstra takhøyde opp til 3 meter
Meld interesse
Gi bud
Last ned plantegning
Pris
6 990 000
BRA kvm.
77.1
BRA-i
72.1
Etasje
3.
Rom
3
Soverom
2
Uteplass m²
10,1
Bod
Ja
Garasjeplass
500 000,-
Omkostninger
34 692
Felleskostnader
2 589
Salgsplan leilighet CA301
Meld interesse for enheten
Fyll inn navn
Fyll inn telefonnummer
Fyll inn e-post
Jeg ønsker å bli kontaktet i samtykke med denne
personvernerklæringen
Send
Powered by Plyo
Tilbake til Hus C