Om prosjektet
Boligvelger
Boligene
Området
Dokumenter
Galleri
Nyheter
Kontakt
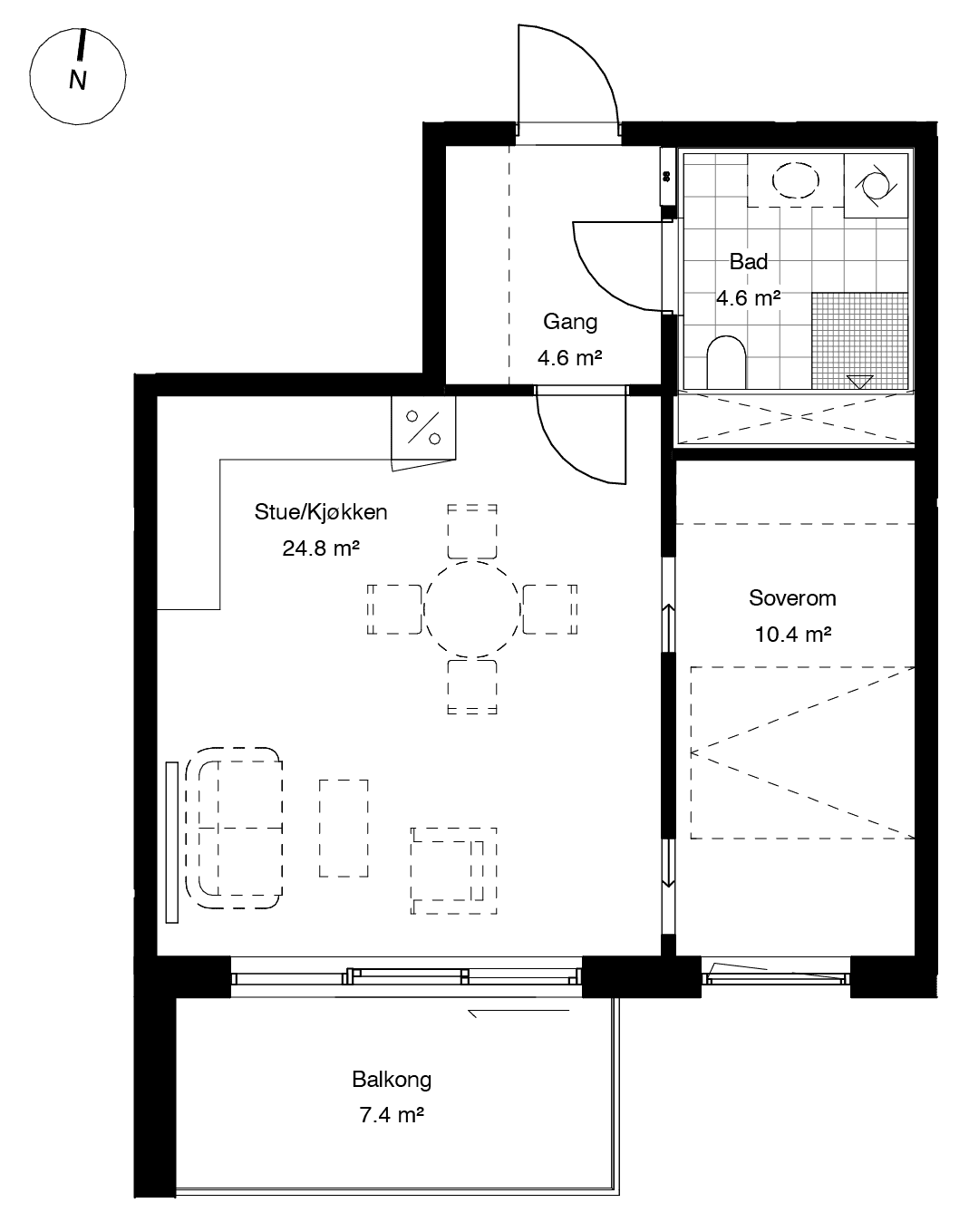
CA202
Ekstra takhøyde opp til 3 meter
Meld interesse
Gi bud
Last ned plantegning
Pris
4 890 000
BRA kvm.
50
P-rom
47.5
Etasje
2.
Rom
2-roms
Soverom
1
Uteplass m²
7,4
Bod
Ja
Garasjeplass
500 000,-
Omkostninger
25 367
Felleskostnader
1 843
Salgsplan leilighet CA202
Meld interesse for enheten
Fyll inn navn
Fyll inn telefonnummer
Fyll inn e-post
Jeg ønsker å bli kontaktet i samtykke med denne
personvernerklæringen
Send
Powered by Plyo
Tilbake til Hus C