Om prosjektet
Boligvelger
Boligene
Området
Dokumenter
Galleri
Nyheter
Kontakt
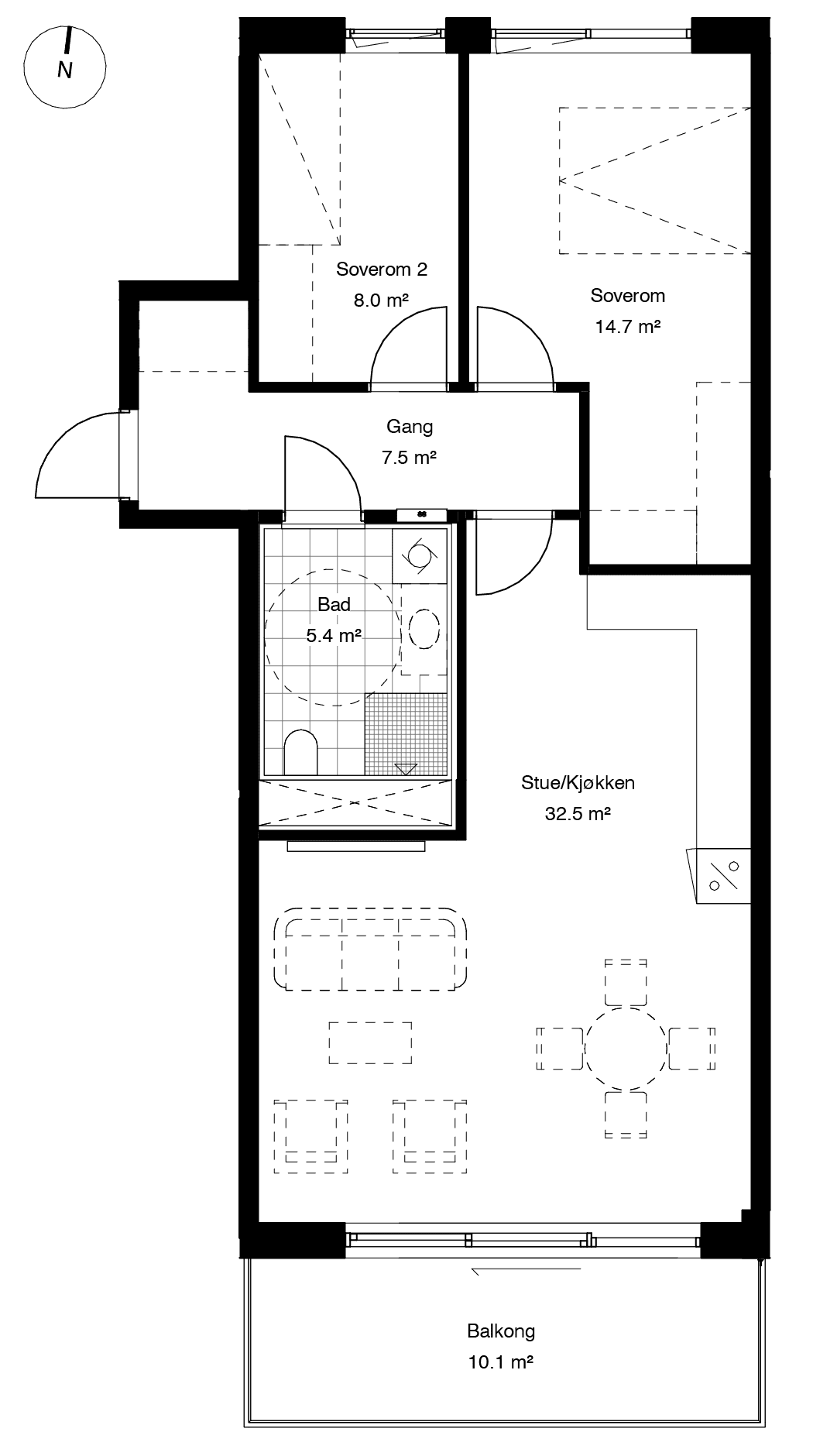
CA201
Ekstra takhøyde opp til 3 meter
Meld interesse
Gi bud
Last ned plantegning
Pris
6 790 000
BRA kvm.
77.1
P-rom
72.1
Etasje
2.
Rom
3-roms
Soverom
2
Uteplass m²
10,1
Bod
Ja
Garasjeplass
500 000,-
Omkostninger
34 692
Felleskostnader
2 589
Salgsplan leilighet CA201
Meld interesse for enheten
Fyll inn navn
Fyll inn telefonnummer
Fyll inn e-post
Jeg ønsker å bli kontaktet i samtykke med denne
personvernerklæringen
Send
Powered by Plyo
Tilbake til Hus C