Om prosjektet
Boligvelger
Boligene
Området
Dokumenter
Galleri
Nyheter
Kontakt
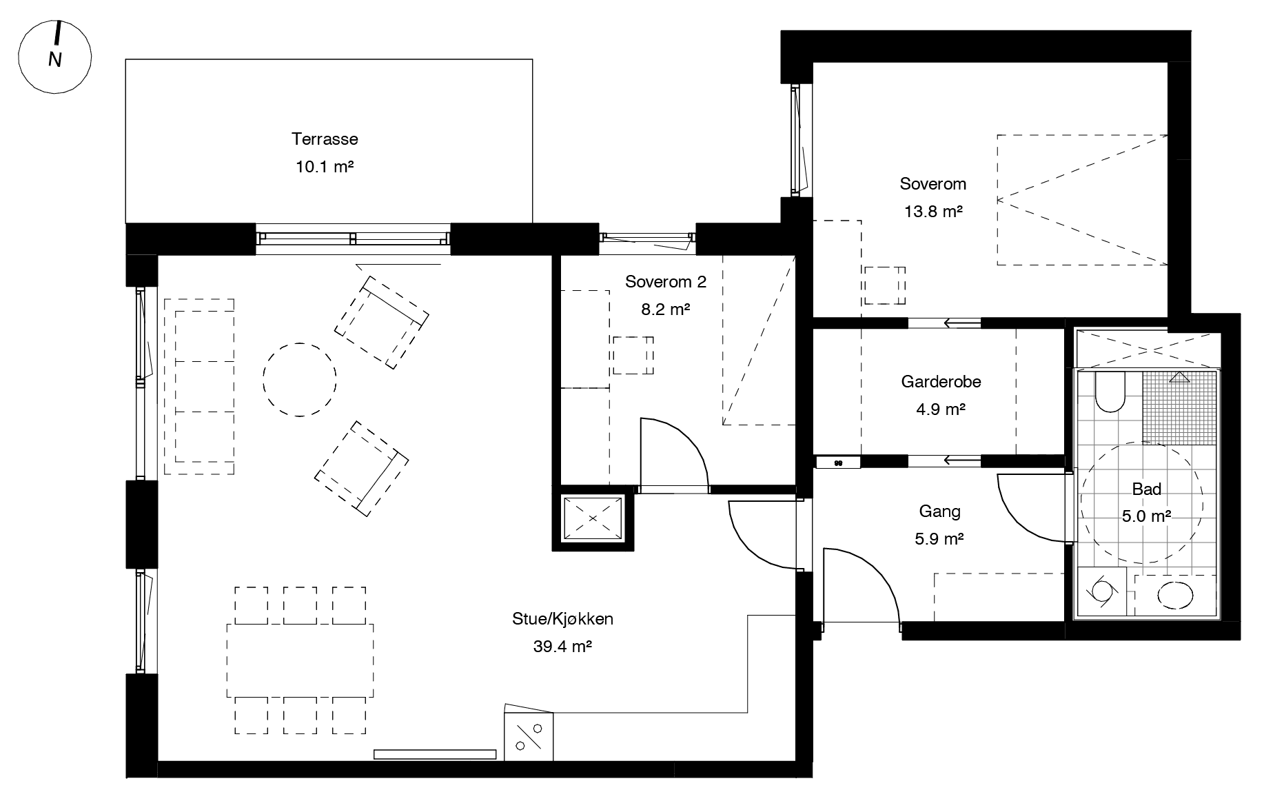
CA105
Meld interesse
Gi bud
Last ned plantegning
Pris
7 590 000
BRA kvm.
87.3
P-rom
82.3
Etasje
1.
Rom
3-roms
Soverom
2
Uteplass m²
10,1
Bod
Ja
Garasjeplass
500 000,-
Omkostninger
39 292
Felleskostnader
2 957
Salgsplan leilighet CA105
Meld interesse for enheten
Fyll inn navn
Fyll inn telefonnummer
Fyll inn e-post
Jeg ønsker å bli kontaktet i samtykke med denne
personvernerklæringen
Send
Powered by Plyo
Tilbake til Hus C