Om prosjektet
Boligvelger
Boligene
Området
Dokumenter
Galleri
Nyheter
Kontakt
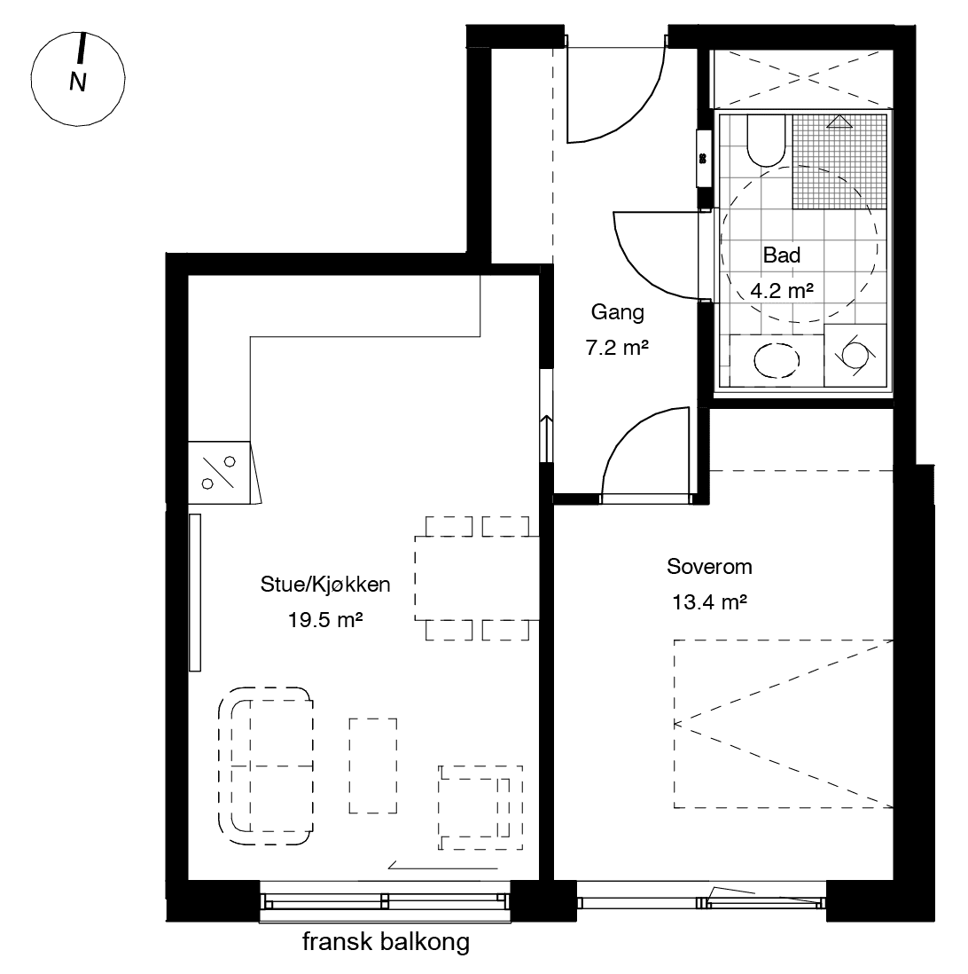
CA103
Meld interesse
Gi bud
Last ned plantegning
Pris
4 290 000
BRA kvm.
50
P-rom
47.5
Etasje
1.
Rom
2-roms
Soverom
1
Uteplass m²
Fransk balkong
Bod
Ja
Garasjeplass
500 000,-
Omkostninger
24 842
Felleskostnader
1 802
Salgsplan leilighet CA103
Meld interesse for enheten
Fyll inn navn
Fyll inn telefonnummer
Fyll inn e-post
Jeg ønsker å bli kontaktet i samtykke med denne
personvernerklæringen
Send
Powered by Plyo
Tilbake til Hus C