Om prosjektet
Boligvelger
Boligene
Området
Næringslokaler
Dokumenter
Galleri
Nyheter
Kontakt
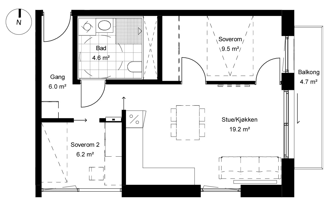
A514
Meld interesse
Last ned salgstegning
Pris
BRA kvm.
49.6
P-rom
49.6
Etasje
5.
Rom
3
Soverom
2
Uteplass m²
5
Bod
Ja
Garasjeplass
500 000,-
Omkostninger
26 162
Salgsplan leilighet A514
Meld interesse for enheten
Fyll inn navn
Fyll inn telefonnummer
Fyll inn e-post
Jeg ønsker å bli kontaktet i samtykke med denne
personvernerklæringen
Send
Powered by Plyo
Tilbake til Boligvelger