Om prosjektet
Boligvelger
Boligene
Området
Dokumenter
Galleri
Nyheter
Kontakt
A513
Meld interesse
Kjøp
Last ned salgstegning
Pris
4 790 000
Totalpris
4 815 040
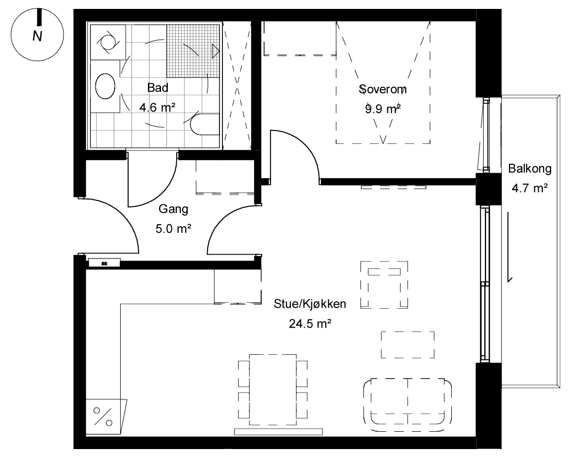
BRA-i
47.3
Total BRA
49.8
BRA-e
2.5
Etasje
5.
Rom
2-roms
Soverom
1
Uteplass m²
5
Bod
Ja
Garasjeplass
500 000,-
Omkostninger
25 040
Salgsplan leilighet A513
Meld interesse for enheten
Fyll inn navn
Fyll inn telefonnummer
Fyll inn e-post
Jeg ønsker å bli kontaktet i samtykke med denne
personvernerklæringen
Send
Powered by Plyo
Tilbake til Boligvelger