Om prosjektet
Boligvelger
Boligene
Området
Næringslokaler
Dokumenter
Galleri
Nyheter
Kontakt
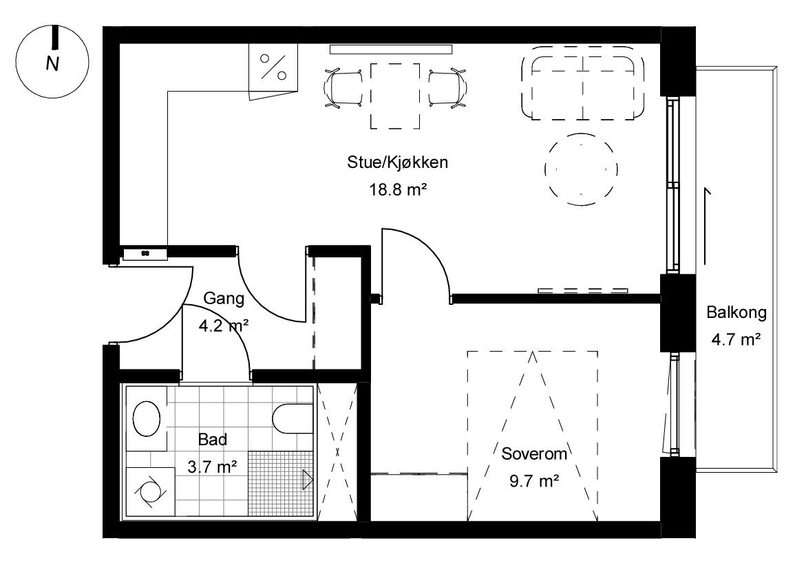
A512
Meld interesse
Last ned salgstegning
Pris
BRA kvm.
39.4
P-rom
39.4
Etasje
5.
Rom
2
Soverom
1
Uteplass m²
5
Bod
Ja
Garasjeplass
500 000,-
Omkostninger
21 990
Salgsplan leilighet A512
Meld interesse for enheten
Fyll inn navn
Fyll inn telefonnummer
Fyll inn e-post
Jeg ønsker å bli kontaktet i samtykke med denne
personvernerklæringen
Send
Powered by Plyo
Tilbake til Boligvelger