Om prosjektet
Boligvelger
Boligene
Området
Dokumenter
Galleri
Nyheter
Kontakt
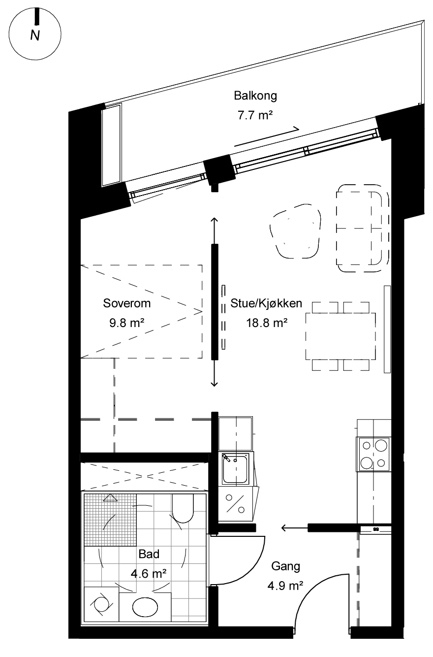
A509
Meld interesse
Kjøp
Last ned salgstegning
Pris
4 390 000
Totalpris
4 412 640
BRA-i
41.4
Total BRA
43.9
BRA-e
2.5
Etasje
5.
Rom
2-roms
Soverom
1
Uteplass m²
8
Bod
Ja
Garasjeplass
500 000,-
Omkostninger
22 640
Salgsplan leilighet A509
Meld interesse for enheten
Fyll inn navn
Fyll inn telefonnummer
Fyll inn e-post
Jeg ønsker å bli kontaktet i samtykke med denne
personvernerklæringen
Send
Powered by Plyo
Tilbake til Boligvelger