Om prosjektet
Boligvelger
Boligene
Området
Næringslokaler
Dokumenter
Galleri
Nyheter
Kontakt
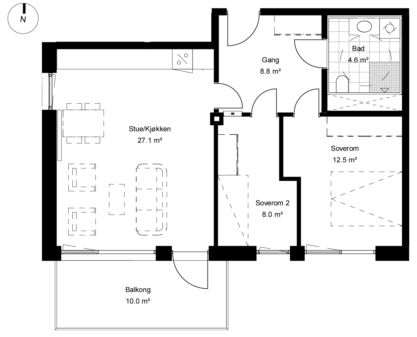
A504
Meld interesse
Kjøp
Last ned salgstegning
Pris
BRA kvm.
69
P-rom
64.9
Etasje
5.
Rom
3-roms
Soverom
2
Uteplass m²
10
Bod
Ja
Garasjeplass
500 000,-
Omkostninger
Salgsplan leilighet A504
Meld interesse for enheten
Fyll inn navn
Fyll inn telefonnummer
Fyll inn e-post
Jeg ønsker å bli kontaktet i samtykke med denne
personvernerklæringen
Send
Powered by Plyo
Tilbake til Boligvelger