Om prosjektet
Boligvelger
Boligene
Området
Dokumenter
Galleri
Nyheter
Kontakt
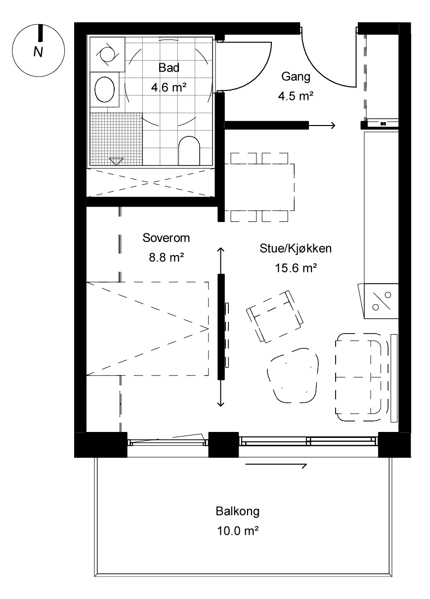
A502
Meld interesse
Kjøp
Last ned salgstegning
Pris
4 390 000
Totalpris
4 410 760
BRA-i
36.6
Total BRA
39.1
BRA-e
2.5
Etasje
5.
Rom
2-roms
Soverom
1
Uteplass m²
10
Bod
Ja
Garasjeplass
500 000,-
Omkostninger
20 760
Salgsplan leilighet A502
Meld interesse for enheten
Fyll inn navn
Fyll inn telefonnummer
Fyll inn e-post
Jeg ønsker å bli kontaktet i samtykke med denne
personvernerklæringen
Send
Powered by Plyo
Tilbake til Boligvelger