Om prosjektet
Boligvelger
Boligene
Området
Næringslokaler
Dokumenter
Galleri
Nyheter
Kontakt
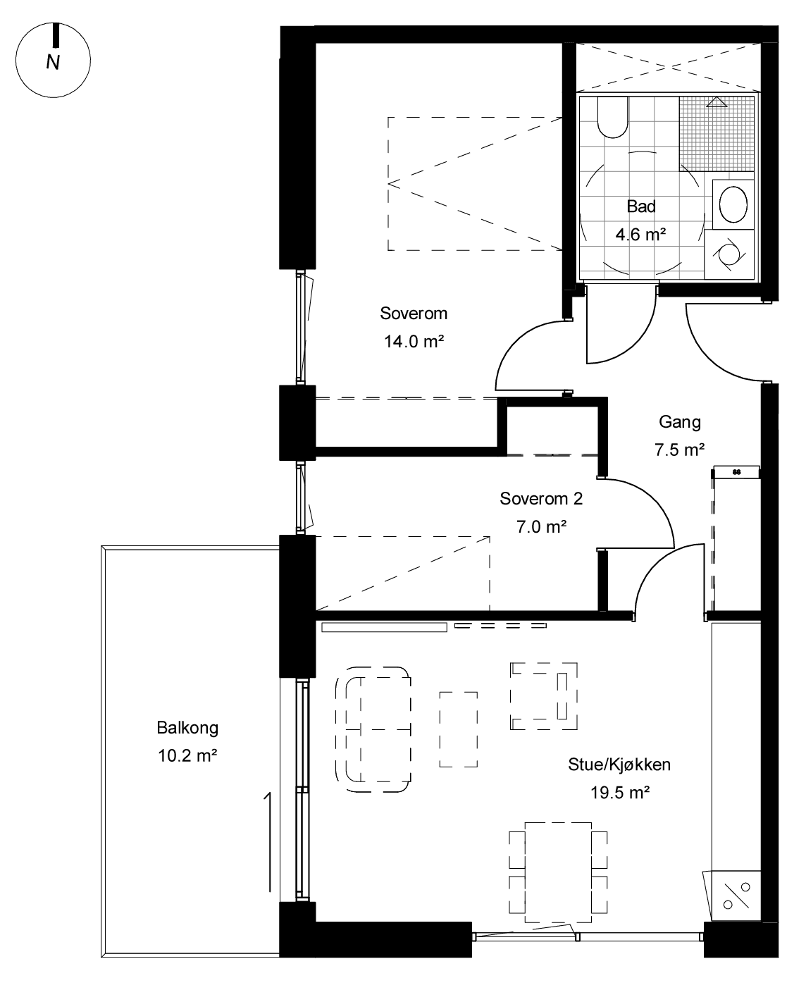
A415
Meld interesse
Last ned salgstegning
Pris
BRA kvm.
56.8
P-rom
56.8
Etasje
4.
Rom
3
Soverom
2
Uteplass m²
10
Bod
Ja
Garasjeplass
500 000,-
Omkostninger
29 042
Salgsplan leilighet A415
Meld interesse for enheten
Fyll inn navn
Fyll inn telefonnummer
Fyll inn e-post
Jeg ønsker å bli kontaktet i samtykke med denne
personvernerklæringen
Send
Powered by Plyo
Tilbake til Boligvelger