Om prosjektet
Boligvelger
Boligene
Området
Næringslokaler
Dokumenter
Galleri
Nyheter
Kontakt
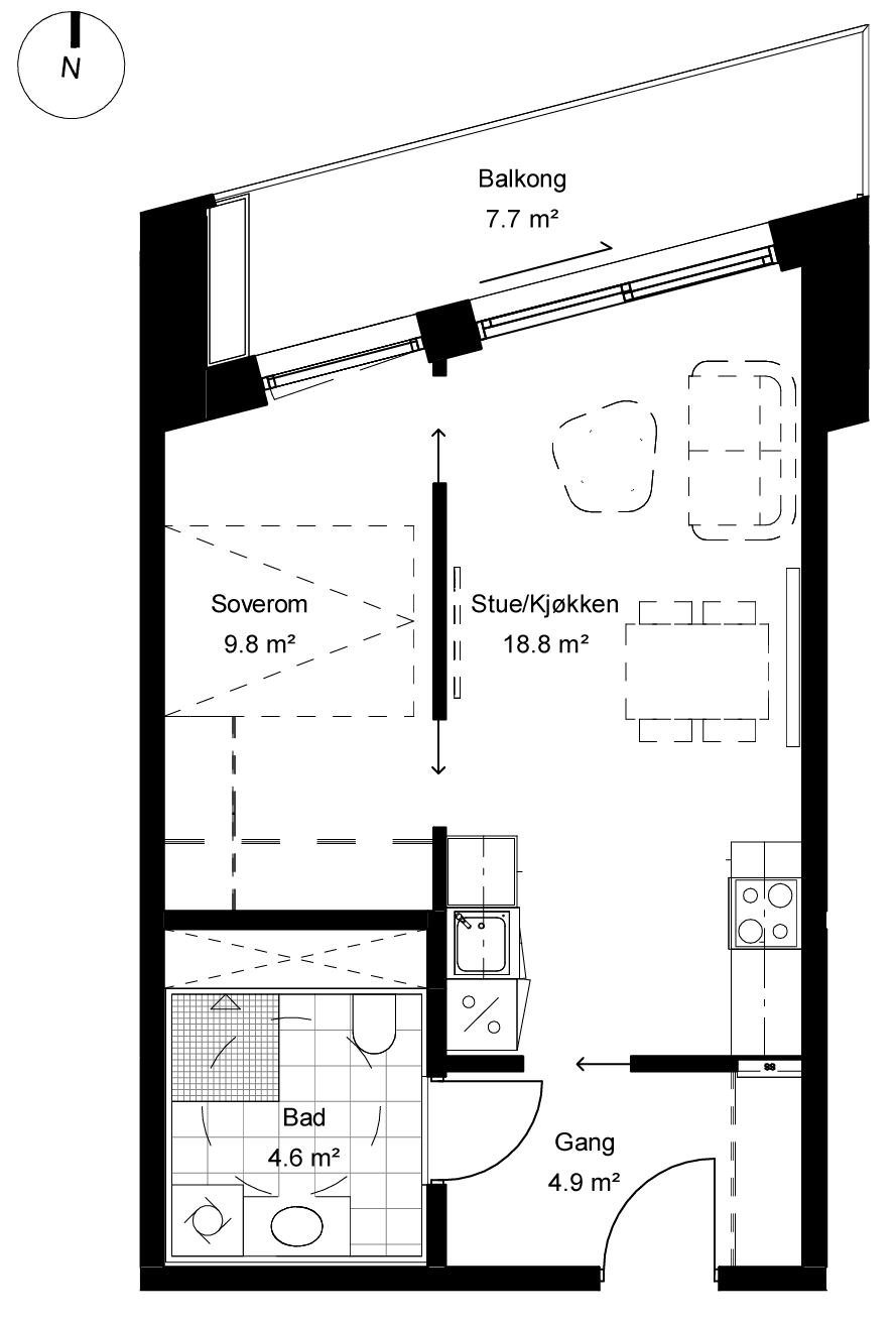
A407
Meld interesse
Last ned salgstegning
Pris
BRA kvm.
41.4
P-rom
41.4
Etasje
4.
Rom
2
Soverom
1
Uteplass m²
8
Bod
Ja
Garasjeplass
500 000,-
Omkostninger
22 640
Salgsplan leilighet A407
Meld interesse for enheten
Fyll inn navn
Fyll inn telefonnummer
Fyll inn e-post
Jeg ønsker å bli kontaktet i samtykke med denne
personvernerklæringen
Send
Powered by Plyo
Tilbake til Boligvelger