Om prosjektet
Boligvelger
Boligene
Området
Næringslokaler
Dokumenter
Galleri
Nyheter
Kontakt
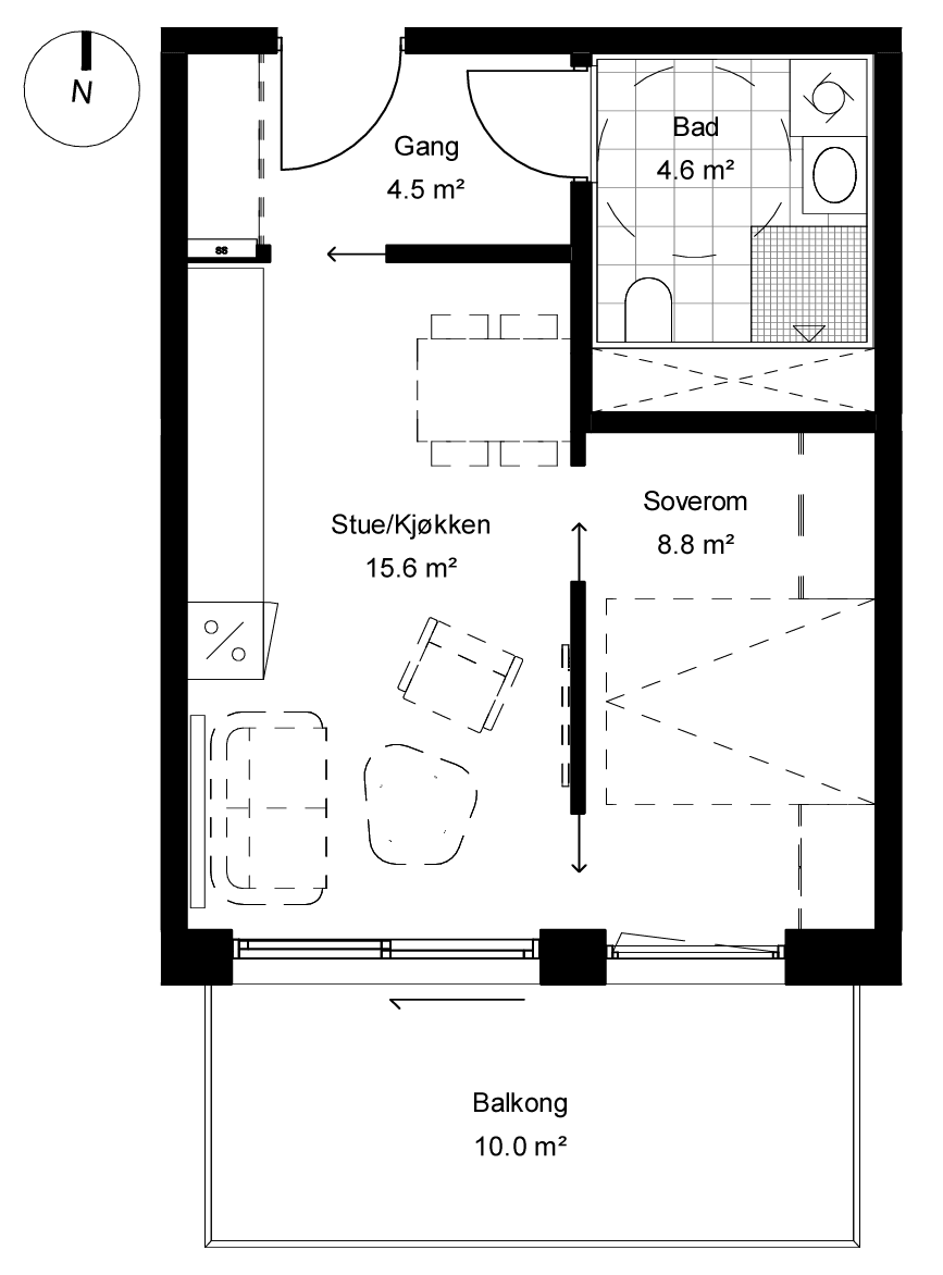
A403
Meld interesse
Last ned salgstegning
Pris
BRA kvm.
36.7
P-rom
36.7
Etasje
4.
Rom
2
Soverom
1
Uteplass m²
10
Bod
Ja
Garasjeplass
500 000,-
Omkostninger
21 012
Salgsplan leilighet A403
Meld interesse for enheten
Fyll inn navn
Fyll inn telefonnummer
Fyll inn e-post
Jeg ønsker å bli kontaktet i samtykke med denne
personvernerklæringen
Send
Powered by Plyo
Tilbake til Boligvelger