Om prosjektet
Boligvelger
Boligene
Området
Næringslokaler
Dokumenter
Galleri
Nyheter
Kontakt
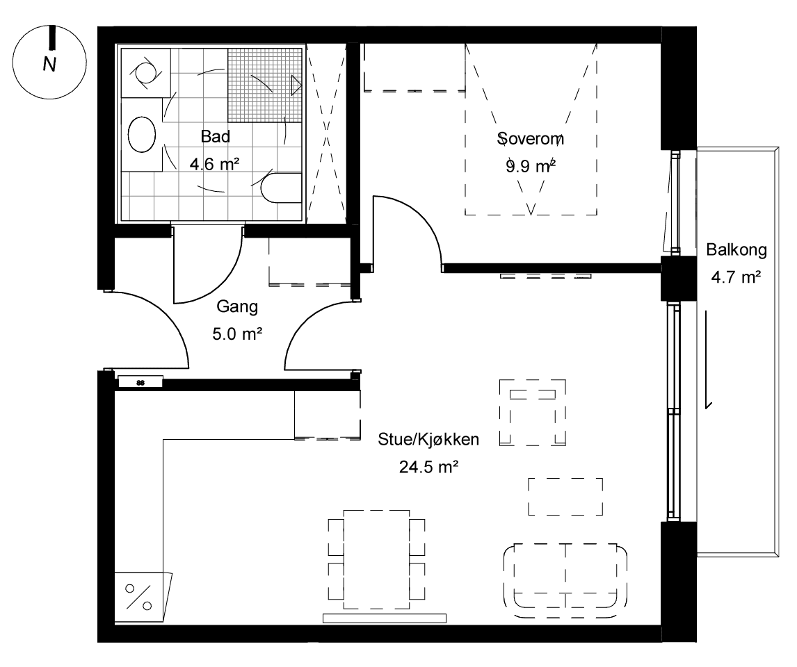
A313
Meld interesse
Kjøp
Last ned salgstegning
Pris
BRA kvm.
49
P-rom
47.4
Etasje
3.
Rom
2-roms
Soverom
1
Uteplass m²
5
Bod
Ja
Garasjeplass
500 000,-
Omkostninger
Salgsplan leilighet A313
Meld interesse for enheten
Fyll inn navn
Fyll inn telefonnummer
Fyll inn e-post
Jeg ønsker å bli kontaktet i samtykke med denne
personvernerklæringen
Send
Powered by Plyo
Tilbake til Boligvelger