Om prosjektet
Boligvelger
Boligene
Området
Dokumenter
Galleri
Nyheter
Kontakt
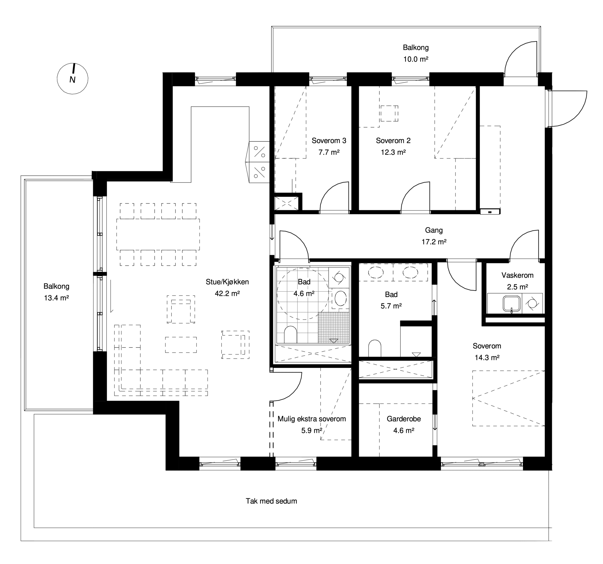
CB501
Meld interesse
Last ned plantegning
Pris
BRA kvm.
127
P-rom
120.5
Etasje
5.
Rom
4-roms
Soverom
3
Uteplass m²
13,4 + 10,5
Bod
Ja
Garasjeplass
500 000,-
Omkostninger
Felleskostnader
4 374
Salgsplan leilighet CB501
Meld interesse for enheten
Fyll inn navn
Fyll inn telefonnummer
Fyll inn e-post
Jeg ønsker å bli kontaktet i samtykke med denne
personvernerklæringen
Send
Powered by Plyo
Tilbake til Hus C