Om prosjektet
Boligvelger
Boligene
Området
Dokumenter
Galleri
Nyheter
Kontakt
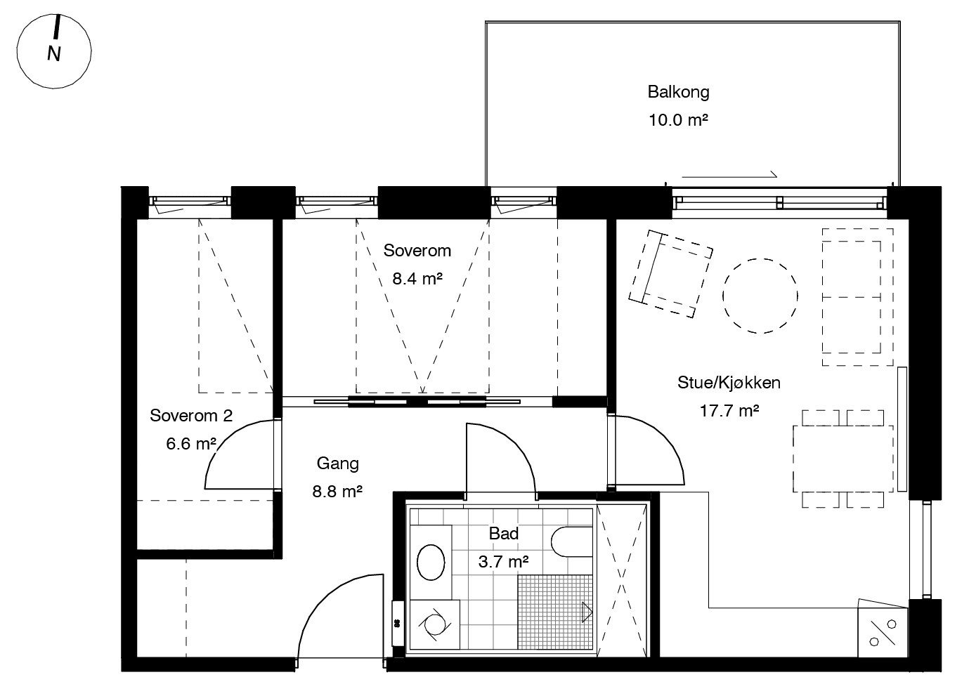
CB404
Meld interesse
Gi bud
Last ned plantegning
Pris
5 190 000
BRA kvm.
51.9
P-rom
49.4
Etasje
4.
Rom
3-roms
Soverom
2
Uteplass m²
10
Bod
Ja
Garasjeplass
500 000,-
Omkostninger
26 092
Felleskostnader
1 901
Salgsplan leilighet CB404
Meld interesse for enheten
Fyll inn navn
Fyll inn telefonnummer
Fyll inn e-post
Jeg ønsker å bli kontaktet i samtykke med denne
personvernerklæringen
Send
Powered by Plyo
Tilbake til Hus C