Om prosjektet
Boligvelger
Boligene
Området
Dokumenter
Galleri
Nyheter
Kontakt
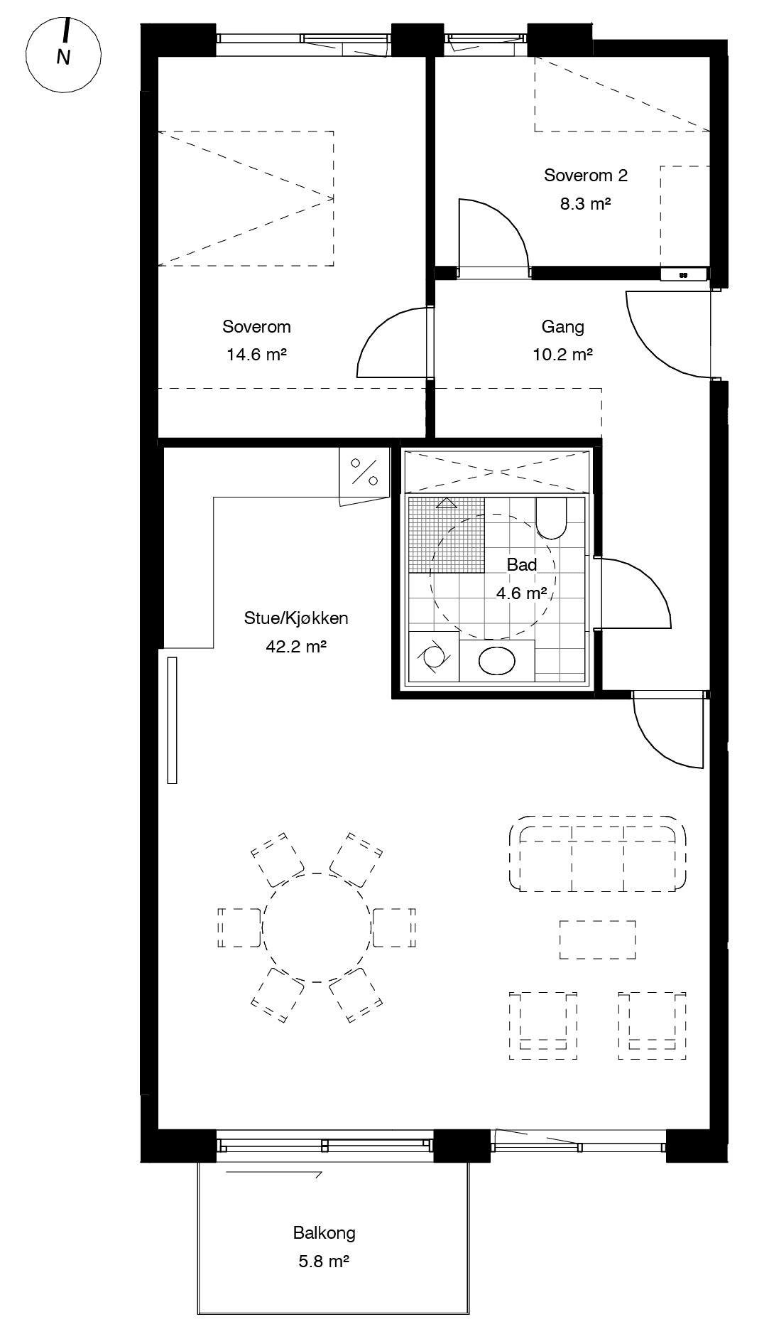
CB202
Meld interesse
Last ned plantegning
Pris
BRA kvm.
84.3
P-rom
84.3
Etasje
2.
Rom
3-roms
Soverom
2
Uteplass m²
5,8
Bod
Ja
Garasjeplass
500 000,-
Omkostninger
Felleskostnader
2 982
Salgsplan leilighet CB202
Meld interesse for enheten
Fyll inn navn
Fyll inn telefonnummer
Fyll inn e-post
Jeg ønsker å bli kontaktet i samtykke med denne
personvernerklæringen
Send
Powered by Plyo
Tilbake til Hus C