Om prosjektet
Boligvelger
Boligene
Området
Dokumenter
Galleri
Nyheter
Kontakt
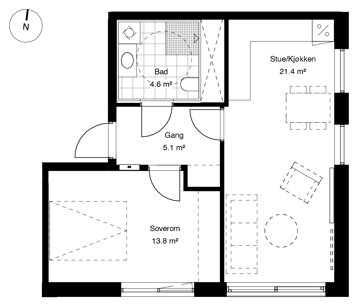
CB105
Meld interesse
Gi bud
Last ned plantegning
Pris
4 590 000
BRA kvm.
50.8
P-rom
48.3
Etasje
1.
Rom
2-roms
Soverom
1
Uteplass m²
Fransk balkong
Bod
Ja
Garasjeplass
500 000,-
Omkostninger
25 642
Felleskostnader
1 866
Salgsplan leilighet CB105
Meld interesse for enheten
Fyll inn navn
Fyll inn telefonnummer
Fyll inn e-post
Jeg ønsker å bli kontaktet i samtykke med denne
personvernerklæringen
Send
Powered by Plyo
Tilbake til Hus C