Om prosjektet
Boligvelger
Boligene
Området
Dokumenter
Galleri
Nyheter
Kontakt
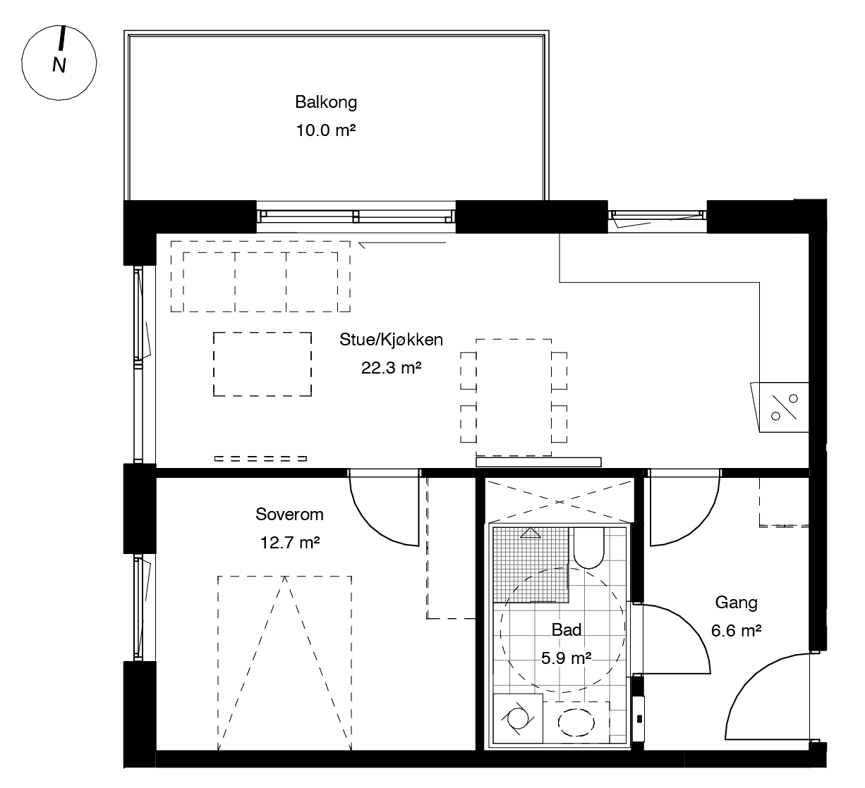
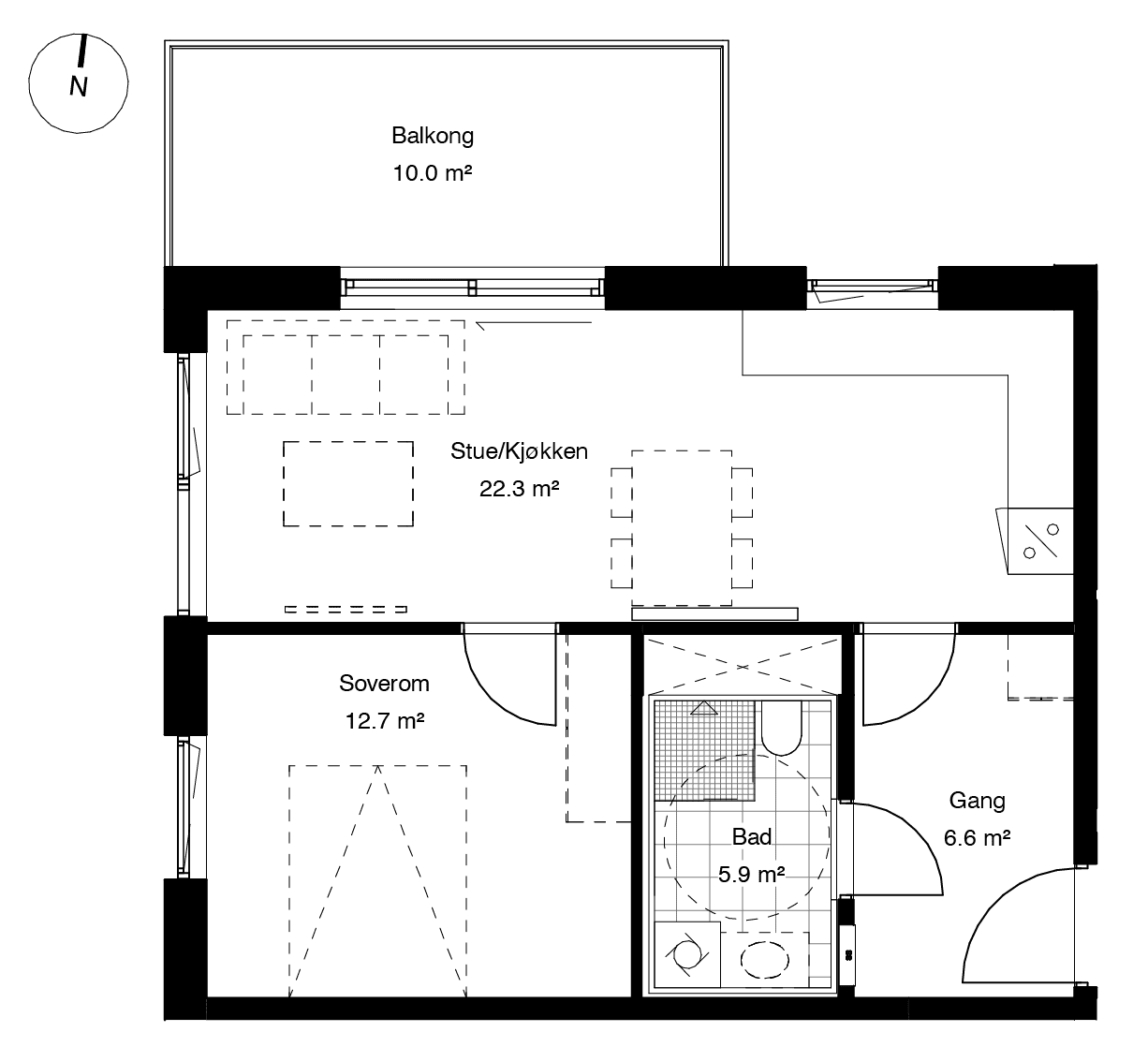
CA205
Ekstra takhøyde opp til 3 meter
Meld interesse
Gi bud
Last ned plantegning
Pris
4 890 000
BRA kvm.
51.4
P-rom
48.9
Etasje
2.
Rom
2-roms
Soverom
1
Uteplass m²
10
Bod
Ja
Garasjeplass
500 000,-
Omkostninger
25 892
Felleskostnader
1 885
Salgsplan leilighet CA205
Meld interesse for enheten
Fyll inn navn
Fyll inn telefonnummer
Fyll inn e-post
Jeg ønsker å bli kontaktet i samtykke med denne
personvernerklæringen
Send
Powered by Plyo
Tilbake til Hus C