Om prosjektet
Boligvelger
Boligene
Området
Dokumenter
Galleri
Nyheter
Kontakt
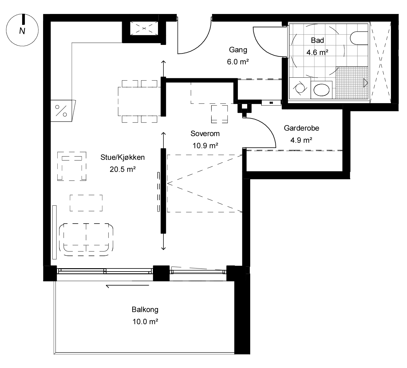
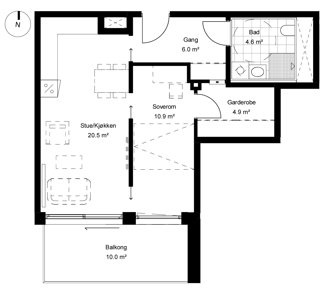
A301
Meld interesse
Kjøp
Last ned salgstegning
Pris
4 290 000
Totalpris
4 316 390
BRA-i
50.9
Total BRA
55.9
BRA-e
5
Etasje
3.
Rom
2-roms
Soverom
1
Uteplass m²
10
Bod
Ja
Garasjeplass
500 000,-
Omkostninger
26 390
Salgsplan leilighet A301
Meld interesse for enheten
Fyll inn navn
Fyll inn telefonnummer
Fyll inn e-post
Jeg ønsker å bli kontaktet i samtykke med denne
personvernerklæringen
Send
Powered by Plyo
Tilbake til Boligvelger